Prefabrik Ev – G16

1 / 2
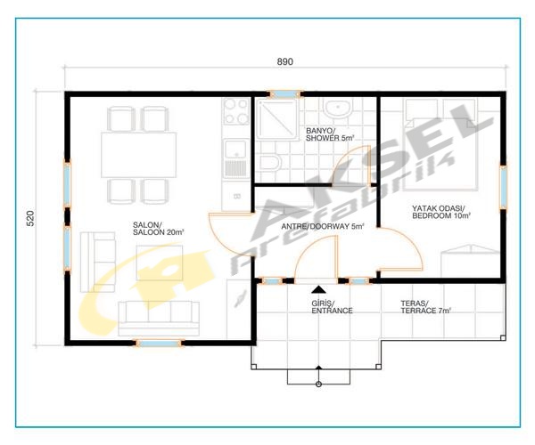
Prefabrik Ev Ölçüleri

Prefabrik Ev – G16

Alan Proje Kapsamında Belirlenir
Oda Sayısı İhtiyaca Göre Projelendirilir
Teslim Süresi Proje Kapsamında Belirlenir
Kalite Uzun Ömürlü Ürün

Öne Çıkan Özellikler

  • Aile için ideal
  • Bahçe uyumu
  • Ekonomik
  • Konforlu

Temel

Temel Firmamız tarafından verilecek temel boyutlarına göre işveren tarafından beton dökülecektir. Bina temel betonuna çelik dübellerle sabitlenecektir.

Çatı

Makas Çelik makas
Aşıklar Çelik aşık
Kaplama Raal 3009 trapez kesitli sac veya şıngıl
Saçak 200 mm

Dış Duvarlar

Panel Karkası Özel büküm galvaniz sac 40 x 60 x 40 x 0,70 mm ölçülerinde pres makinasında bükülerek mukavemet kazandırılmıştır.
Dış Yüzey 8 mm kalınlığında neme dayanıklı çimento esaslı yonga levha üzeri Siding kaplama (istenilen renkte)
İzolasyon 50 mm kalınlığında camyünü
İç Yüzey 12 mm kalınlığında alçıpan levha
Panel Yüksekliği 2500 mm
Duvar Kalınlığı 76 mm

İç Duvarlar

Panel Karkası Özel büküm galvaniz sac 40x60x40x0,70 mm ölçülerinde pres makinasında bükülerek mukavemet kazandırılmıştır.
Dış Yüzey 12 mm kalınlığında beyaz alçıpan levha
İzolasyon 50 mm kalınlığında camyünü
İç Yüzey 12 mm kalınlığında beyaz alçıpan levha
Islak Hacimler 12 mm yeşil alçıpan yada 8 mm kalınlığında neme dayanıklı çimento esaslı yonga levha
Panel Yüksekliği 2500 mm
Duvar Kalınlığı 76 mm

Tavan

Kaplama 12 mm kalınlığında beyaz alçıpan levha
İzolasyon 80 mm kalınlığında camyünü

Kapılar

Dış Kapı Çelik kapı
İç Kapı Amerikan panel kapı

Pencereler

Pencereler 1000/1100 mm (4+12+4) ısıcamlı takmatik sineklikli pvc doğrama
Vasistas 600/400 mm (4+12+4) ısıcamlı sabit sineklikli PVC doğrama

Elektrik Tesisatı

Kablo Priz kabloları 3x2,5 mm NYM, Aydınlatma kabloları 2x1,5 mm NYM
Aydınlatma Armatürleri Oda hacimlerinde standart armatür, wc/banyo ve koridor tavan glob armatür, dış kapı aydınlatması kafesli glob armatür.
Priz/Anahtar Oda hacimlerinde topraklı priz, ıslak hacimlerde topraklı kapaklı priz
Ana Hat Bağlantısı İş veren tarafından yapılmaktadır

Sıhhi Tesisat

Pis Su Boruları PVC Boru
Temiz Su Borular PPRC boru
Vitrifiye Klozet, lavabo, duş kabini
Ana Hat Bağlantısı İş veren tarafından yapılmaktadır

Zemin

Şap/Tesviye Betonu İş veren tarafından yapılmaktadır
Oda Zemini Parke
Antre Zemini Seramik kaplama

Boya

İç Duvar ve Tavan Alçı sıva üzerine istenilen renkte plastik boya

Ürün hakkında detaylı açıklama buraya yazılacak...