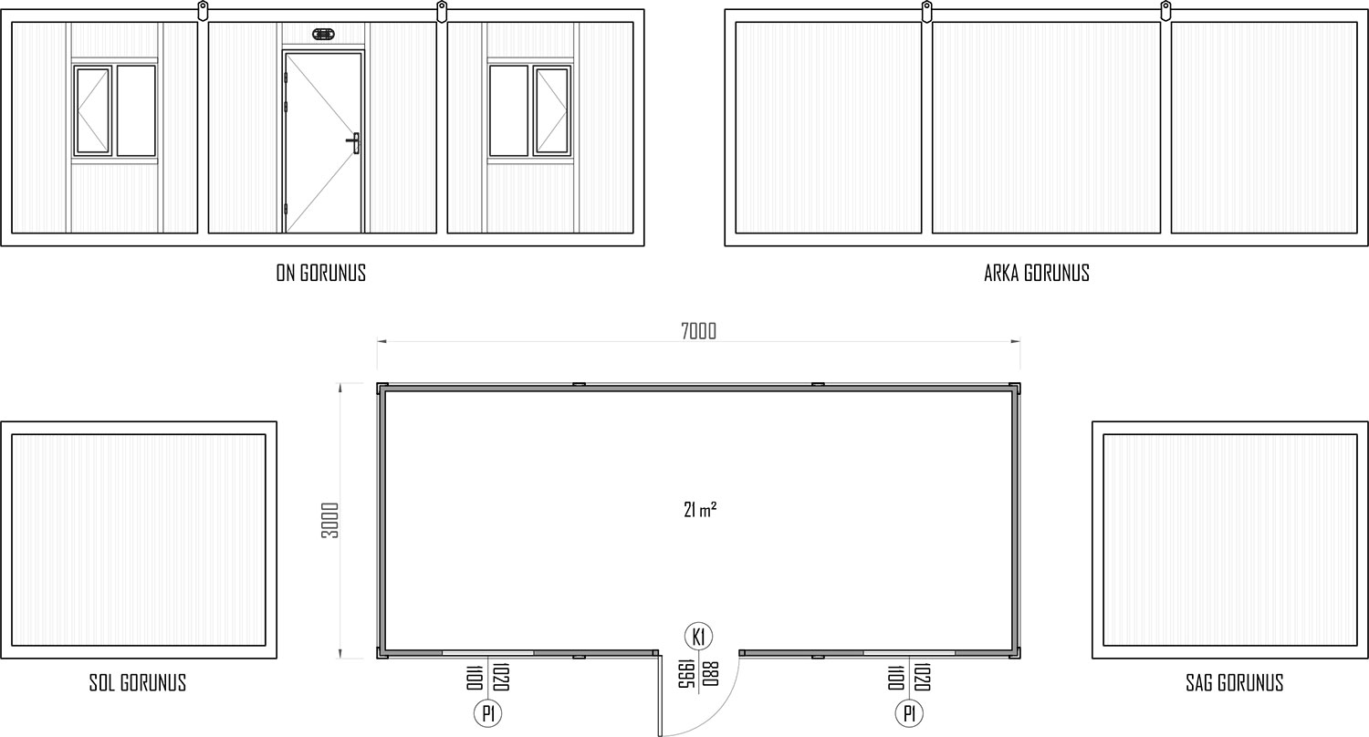
Konteyner-101
Genel Bilgiler
| Taşıyıcı Çerçeve | Tavan ve taban çerçeve kıvrımları ile köşe kolonları 2 mm pres büküm sacdan oluşmaktadır. Yatay ve dikey kayıtlar hazır profillerden oluşur. |
Çatı
| Kaplama | 0,55 mm kalınlığında 27/200 formunda galvaniz trapez sac |
| Yağmur Oluğu | Yağmur suları konteyner dar kenarlarından serbest olarak dışa dökülür |
Tavan
| Kaplama | 10 mm kalınlığında pvc lambiri |
| İzolasyon | 80 mm kalınlığında camyünü |
Taban
| Kaplama | 18 mm kalınlığında sunta yada 16 mm kalınlığında betopan |
| Yer Döşemesi | 2 mm kalınlığında Pvc yer kaplama malzemesi |
İç - Dış Duvarlar
| İç ve Dış Duvarlar | 60 mm EPS Sandviç panel |
Pencereler
| Pencereler | 1000/1100 mm (4+12+4) ısıcamlı pvc doğrama |
| Vasistas | 600/400 mm (4+12+4) ısıcamlı sabit sineklikli PVC doğrama |
Kapılar
| Dış Kapı | Her iki yüzü ral 9002 renginde elektrostatik toz fırın boyalı 1,5 mm kalınlığında DKP sac arası yalıtım malzemesi kullanılarak imal edilmiştir |
| İç Kapı | Amerikan panel kapı |
| WC Kapı | PVC kapı |
Sıhhi Tesisat
| Pis Su Boruları | PVC boru |
| Temiz Su Boruları | PPRC boru |
| Vitrifiye | Klozet, lavabo |
| Ana Hat Bağlantısı | İş veren tarafından yapılmaktadır |
Elektrik Tesisatı
| Kablo | Priz kabloları 3x2,5 mm NYM, Aydınlatma kabloları 2x1,5 mm |
| Aydınlatma Armatürleri | Oda hacimlerinde standart armatür, wc/banyo ve koridor tavan glob armatür, dış kapı aydınlatması kafesli glob armatür |
| Priz/Anahtar | Oda hacimlerinde topraklı priz, ıslak hacimlerde topraklı kapaklı |
| Ana Hat Bağlantısı | İş veren tarafından yapılmaktadır |
Ürün hakkında detaylı açıklama buraya yazılacak...
Benzer Ürünler
1 / 1



