Konteyner-103
Genel Bilgiler
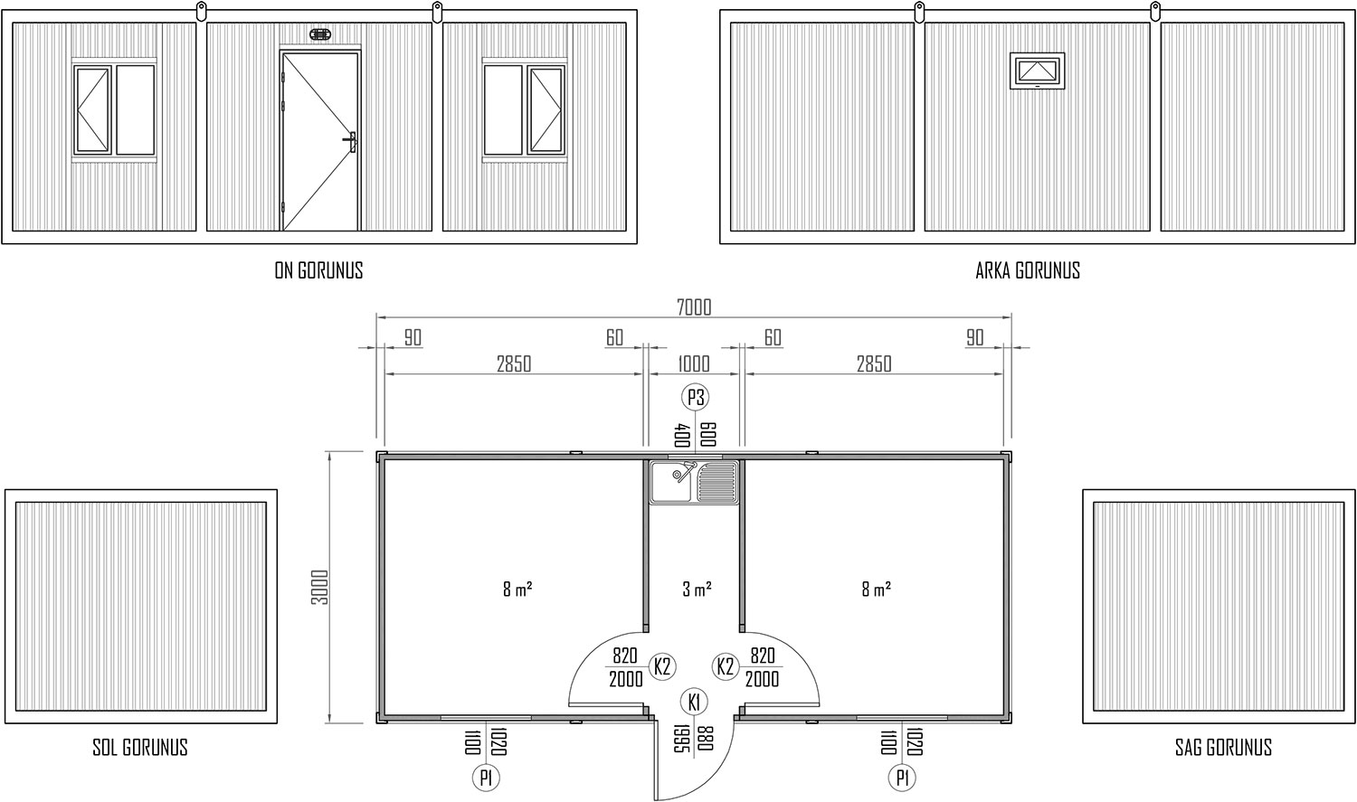
| Taşıyıcı Çerçeve | Tavan ve taban çerçeve kıvrımları ile köşe kolonları 2 mm pres büküm sacdan oluşmaktadır. Yatay ve dikey kayıtlar hazır profillerden oluşur. |
Çatı
| Kaplama | 0,55 mm kalınlığında 27/200 formunda galvaniz trapez sacnYağmur Oluğu|Yağmur suları konteyner dar kenarlarından serbest olarak dışa dökülür |
Tavan
| Kaplama | 10 mm kalınlığında pvc lambirinİzolasyon|80 mm kalınlığında camyünü |
Taban
| Kaplama | 18 mm kalınlığında sunta yada 16 mm kalınlığında betopannYer Döşemesi|2 mm kalınlığında Pvc yer kaplama malzemesi |
İç - Dış Duvarlar
| İç ve Dış Duvarlar | 60 mm EPS Sandviç panel |
Pencereler
| Pencereler | 1000/1100 mm (4+12+4) ısıcamlı pvc doğramanVasistas|600/400 mm (4+12+4) ısıcamlı sabit sineklikli PVC doğrama |
Kapılar
| Dış Kapı | Her iki yüzü ral 9002 renginde elektrostatik toz fırın boyalı 1,5 mm kalınlığında DKP sac arası yalıtım malzemesi kullanılarak imal edilmiştirnİç Kapı|Amerikan panel kapınWC Kapı|PVC kapı |
Sıhhi Tesisat
| Pis Su Boruları | PVC borunTemiz Su Boruları|PPRC borunVitrifiye|Klozet, lavabonAna Hat Bağlantısı|İş veren tarafından yapılmaktadır |
Elektrik Tesisatı
| Kablo | Priz kabloları 3x2,5 mm NYM, Aydınlatma kabloları 2x1,5 mmnNYMnAydınlatma Armatürleri|Oda hacimlerinde standart armatür, wc/banyo ve koridor tavan glob armatür, dış kapı aydınlatması kafesli glob armatürnPriz/Anahtar|Oda hacimlerinde topraklı priz, ıslak hacimlerde topraklı kapaklınpriznAna Hat Bağlantısı|İş veren tarafından yapılmaktadır |
Ürün hakkında detaylı açıklama buraya yazılacak...
Benzer Ürünler
1 / 1



