Konteyner-112

1 / 4
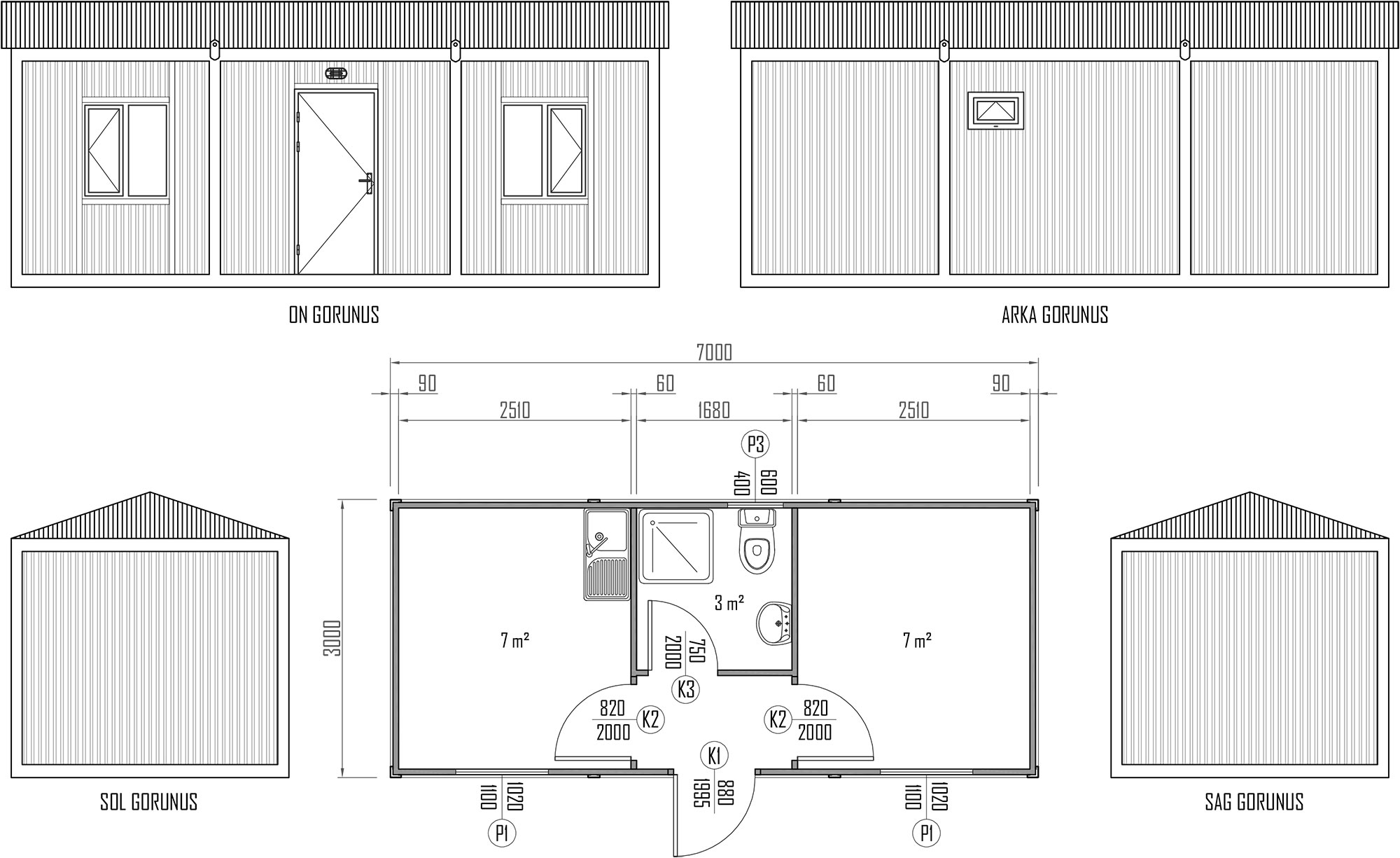
Konteyner Ölçüleri

Konteyner-112

Alan 21 m²
Oda Sayısı 2
Teslim Süresi 7 Gün
Garanti 1 Yıl

Öne Çıkan Özellikler

  • Yüksek kalite malzeme
  • Hızlı teslimat
  • Uzun ömürlü kullanım
  • Profesyonel montaj

Genel Bilgiler

Taşıyıcı Çerçeve Tavan ve taban çerçeve kıvrımları ile köşe kolonları 2 mm pres büküm sacdan oluşmaktadır. Yatay ve dikey kayıtlar hazır profillerden oluşur.

Çatı

Kaplama 0,55 mm kalınlığında 27/200 formunda galvaniz trapez sacnYağmur Oluğu|Yağmur suları konteyner dar kenarlarından serbest olarak dışa dökülür

Tavan

Kaplama 10 mm kalınlığında pvc lambirinİzolasyon|80 mm kalınlığında camyünü

Taban

Kaplama 18 mm kalınlığında sunta yada 16 mm kalınlığında betopannYer Döşemesi|2 mm kalınlığında Pvc yer kaplama malzemesi

İç - Dış Duvarlar

İç ve Dış Duvarlar 60 mm EPS Sandviç panel

Pencereler

Pencereler 1000/1100 mm (4+12+4) ısıcamlı pvc doğramanVasistas|600/400 mm (4+12+4) ısıcamlı sabit sineklikli PVC doğrama

Kapılar

Dış Kapı Her iki yüzü ral 9002 renginde elektrostatik toz fırın boyalı 1,5 mm kalınlığında DKP sac arası yalıtım malzemesi kullanılarak imal edilmiştirnİç Kapı|Amerikan panel kapınWC Kapı|PVC kapı

Sıhhi Tesisat

Pis Su Boruları PVC borunTemiz Su Boruları|PPRC borunVitrifiye|Klozet, lavabonAna Hat Bağlantısı|İş veren tarafından yapılmaktadır

Elektrik Tesisatı

Kablo Priz kabloları 3x2,5 mm NYM, Aydınlatma kabloları 2x1,5 mmnNYMnAydınlatma Armatürleri|Oda hacimlerinde standart armatür, wc/banyo ve koridor tavan glob armatür, dış kapı aydınlatması kafesli glob armatürnPriz/Anahtar|Oda hacimlerinde topraklı priz, ıslak hacimlerde topraklı kapaklınpriznAna Hat Bağlantısı|İş veren tarafından yapılmaktadır

Ürün hakkında detaylı açıklama buraya yazılacak...